
inlay-host relationship
Active Inlays
This project began with an antithetical approach to common practive by first looking at the architectural detail as the basis for its design logic. By moving between scales, the project investigated how conceptual ideas that can be executed at the micro scale can then reappear at the macro scale in new ways. The main ideas that we were interested in expressing are the translation and implications of seams across materials, the expression of a hidden or coy volume, and how tolerances can creatively be used as a design element as opposed to a limitation.
Collaborators: Matthew Gehm

CNC-milled solid Mahogany and coated 3D inlay objects
elevations, sections of the massing model
literal seams being transformed into graphic seams
butterfly section
the building slots into the site
the building slots into the site

1:50 plan and section detail: floor-to-wall
approach to the building from the main plaza
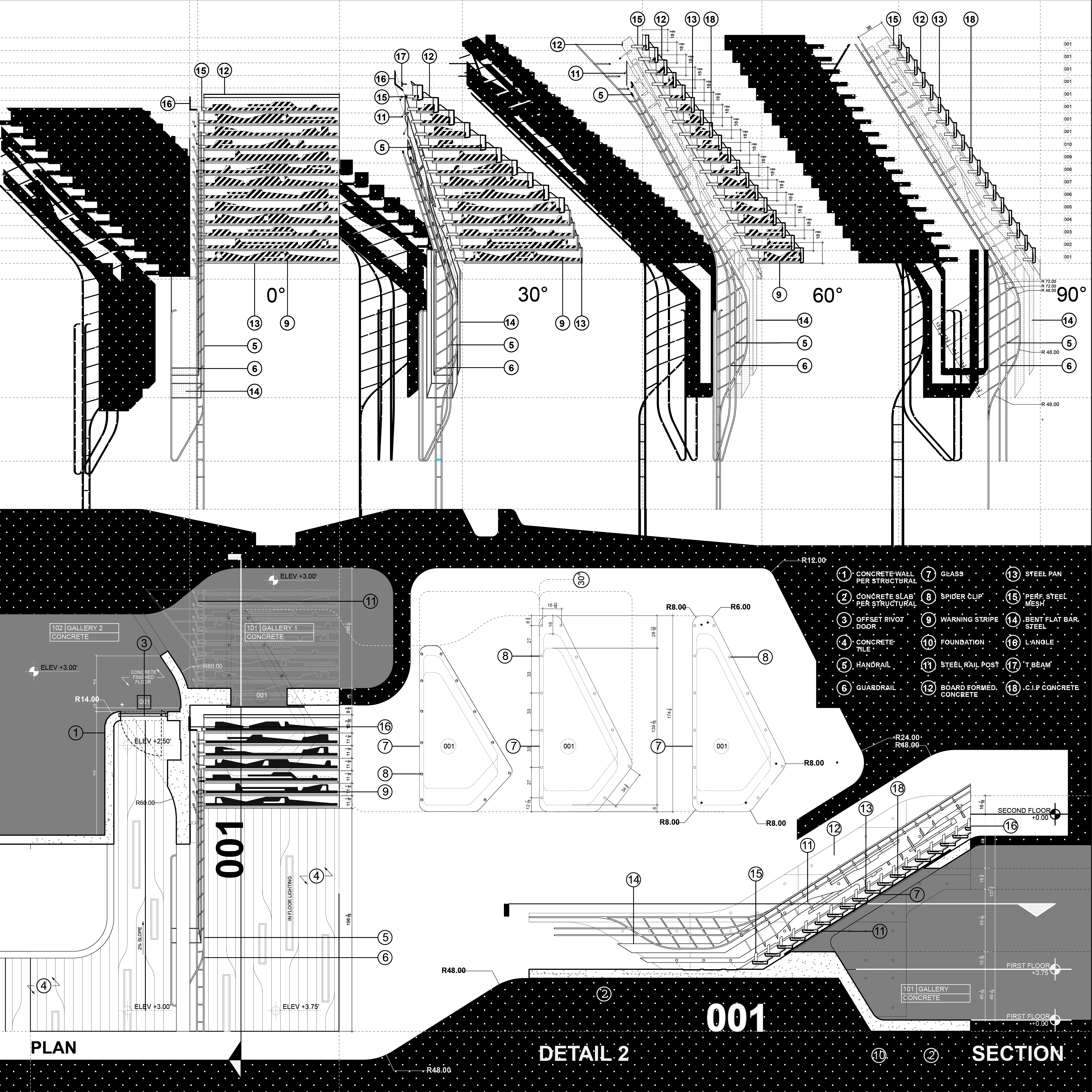
1:50 stair detail drawings
stair detail model
stair detail model
